
新築後そのままの庭をリフォーム!デッキ・芝・フェンス施工例~川崎市多摩区 F様邸

新築後そのままだったお庭をデッキ・芝・フェンスで整備。 川崎市多摩区で行った庭工事の施工事例です。
新築後そのままの庭をリフォーム!デッキ・芝・フェンス 施工前~川崎市多摩区 F様邸


新築後そのままだったお庭。土のままの状態で、まだ活用されていないスペースでした。


リビング前の様子です。既存のブロック塀が古く、暗い印象です。 明るく、くつろげる空間にしたいとのご希望です。


既存のブロック塀は6段と高く、古さや圧迫感も気になるポイント。新築の建物とのバランスも課題でした。
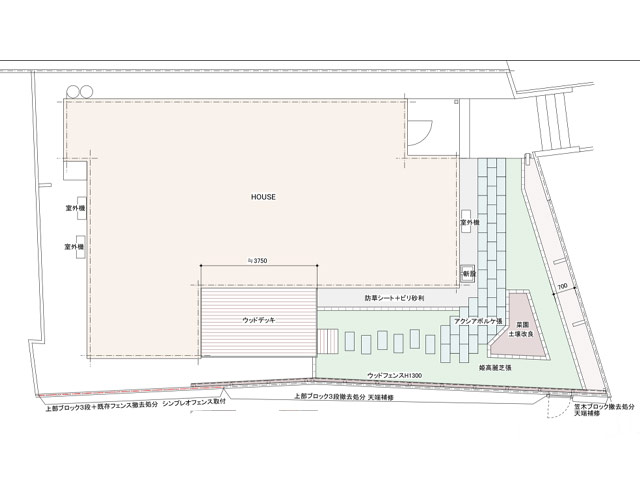
新築後そのままの庭をリフォーム!デッキ・芝・フェンス施工例 ご提案図~川崎市多摩区 F様邸

6段積みのブロック塀は上3段を撤去し、高さを調整。リビング前にはハードウッド「イタウバ」のウッドフェンスを設置します。
腐食していたフェンスはアルミフェンスに交換し、安全性も改善。
庭全体は天然芝を張り、レンガで花壇・菜園スペースを区切ります。
玄関から庭へ続く動線にはインターロッキングを施工し、メリハリのある使いやすいアプローチに。
掃き出し窓前にはウッドデッキを施工し、外に出たくなる空間に。
新築後そのままの庭をリフォーム!デッキ・芝・フェンス 施工中~川崎市多摩区 F様邸


まずはブロック塀の上部を解体し、高さを調整。安全性と見た目の改善を同時に行います。


ウッドフェンスの柱を設置。リビング前の目隠しとして、また、庭からブロック塀が視線に入らないように作って行きます。


レンガで花壇や菜園スペースを区切り、庭の形が見えてきました。使いやすさを考えたレイアウトです。


芝張り作業が進み、お庭らしい雰囲気になってきました。完成が近づいています。
新築後そのままの庭をリフォーム!デッキ・芝・フェンス ビフォーアフター~川崎市多摩区 F様邸

施工前

施工後
新築後、土のままで活用されていなかったお庭。→ 芝とアプローチとデッキを施工し、くつろげる空間に生まれ変わりました。

施工前

施工後
圧迫感のあった古いブロック塀。→ ウッドフェンスでブロック塀や視線を遮り、明るくやわらかい印象に。

施工前

施工後
腐食していた鉄製フェンス。→ アルミフェンスに交換し、安全性も見た目も改善。
川崎市多摩区 F様邸のご主人様が写真撮影に協力してくださいました


川崎市多摩区F様 担当スタッフのコメント
新築後「とりあえず、そのまま」にしていたお庭をフェンス・デッキ・芝・アプローチでしっかり整備することで、 毎日使える“生活の一部”としての庭に生まれ変わりました。
新築から少し落ち着いたタイミングでの庭工事は、庭で何をしたいか、何が気になるかが明確になり、 暮らしに合わせた理想の空間づくりができます。新築後、そのままの庭!是非ご相談ください。
◆庭リフォーム工事【東端笠木撤去処分ブロック天端補修 / 建物東側、南側既存砂利撤去 / ウッドデッキ施工 / 階段(小) / アクシアボルケ張り / レンガ芝生見切 / 菜園用土壌改良(腐葉土鋤込み300mm厚) / 姫高麗芝張施工(土壌改良含む) / 化粧砂利施工(防草シート下地含む) / 立水栓ユニットサークルタイプ(補助蛇口付)取付 / 既存散水栓解体撤去処分】















































