
古くなったウッドデッキを撤去!ハードウッド・イタウバで長持ちデッキに~川崎市高津区 D様邸

古くなったウッドデッキが高耐久のハードウッド・イタウバで新しく生まれ変わりました。川崎市高津区のウッドデッキ工事の施工事例です。
古くなったウッドデッキを撤去!ハードウッド・イタウバで長持ちデッキに~川崎市高津区 D様邸


神奈川県川崎市のD様から、古いスチール物置の撤去やウッドデッキの作り替え、大きくなってしまった庭木の整理をしたく、 相談にのって欲しいとメールをいただきました。駐車場の奥からお庭に入るとウッドデッキが見えます。


こちらのウッドデッキが老朽化してきたため、作り直したいとのことです。


床板にヒビや欠損が見られます。大きなグレーチング蓋があるので、ウッドデッキの出幅は既存の物と同じ幅で作ります。


手摺はまだ使えそうなので再利用します。既存の階段部分からL字に拡張してウッドデッキを作り直したいとのご希望です。


庭の端にある物置は撤去処分をご希望です。使わなくなった古い物置を処分するだけで、お庭は想像以上に広く感じられます。 ライフスタイルの変化に合わせて、庭も見直してみませんか。
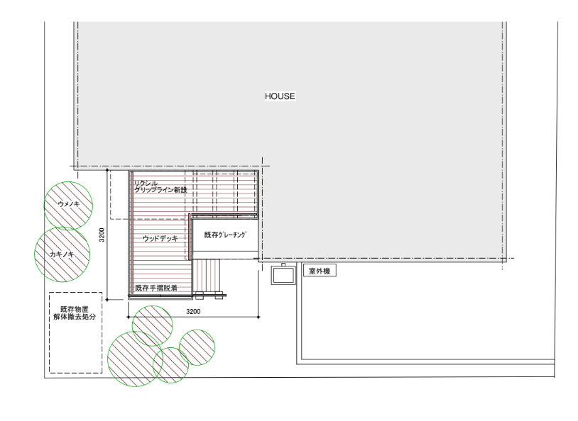
川崎市高津区 D様邸 古くなったウッドデッキを撤去!ハードウッド・イタウバで長持ちデッキに ご提案図

ご提案図です。古くなったウッドデッキを撤去し、新しいウッドデッキを作ります。 ウッドデッキ材として今回ご提案したのはパラー州産「イタウバ」です。 耐久性が高く、ハードウッドの中でも比較的ささくれが出にくいので、ウッドデッキには最適です。 今回グレーチング蓋に沿ってL字に拡張して作ります。 手摺は既存の物を再利用し、不足部分にリクシルの手摺を取付ます。樹木は剪定し整えます。
古くなったウッドデッキを撤去!ハードウッド・イタウバで長持ちデッキに ビフォーアフター ~川崎市高津区 D様邸

施工前

施工後
耐久性に優れたハードウッド・パラー州産「イタウバ」のウッドデッキの完成です!
川崎市高津区 D様邸のご主人様が写真撮影に協力してくださいました。

川崎市高津区 D様邸 担当スタッフのコメント
弊社にご用命いただき、ありがとうございました。ハードウッドイタウバはノーメンテナンスで 20年~30年の耐久性を持つと言われておりますので、長く使っていただけるかと思います。 今回、見送ったオーニングが必要でしたら、またお声がけいただけますと幸いです。















































