
もう草取りに悩まない!手間いらずの庭リフォームで快適に
神奈川県 横浜市 O様邸
横浜市O様邸 もう草取りに悩まない!手間いらずの庭リフォームで快適に 施工例


横浜市O様邸は高台に建つ戸建てで、道路側から見ると大きなコニファーがしっかりと茂って目隠しになっています。階段を上がると玄関に到着。玄関前は飛び石がアプローチとなり、その周りは芝生や砂利があります。


砂利の下には防草シートは敷いていない様子です。玄関奥には枕木でできた花壇があります。 花壇前にも化粧砂利が敷いてあり、可愛らしい白い木製フェンスが目に入る温かみのあるスペースになっています。 花壇の植物周りに雑草が広がり、せっかくの花壇スペースが少し埋もれてしまっている印象です。


玄関横から北面です。細い通路ですが、日が当たる場所と当たらない場所でも違う種類の雑草が生えています。


玄関横から西側に入っていきます。日もよく当たるので草もよく生えています。


西側から南側にかけてコニファーの生垣があります。今回こちらの生垣も撤去処分したいとの事です。


南側のお庭は草取りをマメにされている様子が伺えますが、土のままですとどうしても草が生えてきます。またコニファーの葉も落ちるので掃除はかかせません。


西側です。セイタカアワダチソウなどが生えています。放っておくと背丈まで高く伸びる雑草です。


下に降りてきました。道路と擁壁の境界部分が土なので、雑草が全方面生えています。こちらの草取りも大変との事なので、雑草対策をします。
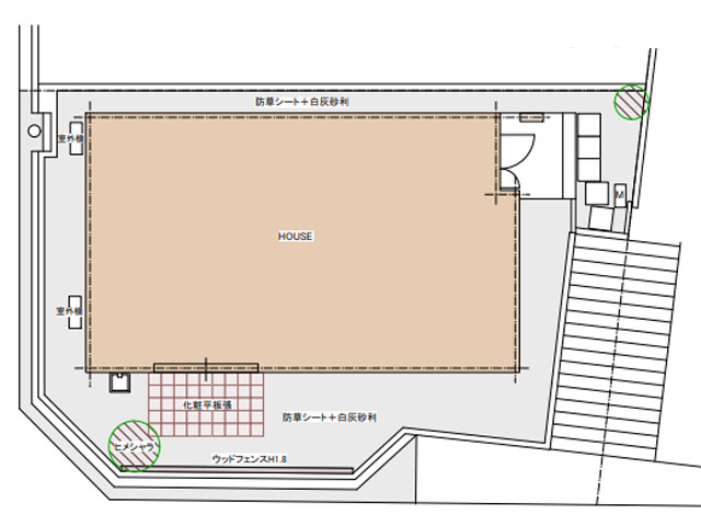
横浜市O様邸 もう草取りに悩まない!手間いらずの庭リフォームで快適に ご提案図

ご提案図です。年齢を重ねるにつれて、庭の草取りや掃除が大変になるというお声を多くいただきます。横浜市O様も花壇や生垣は不要で、今後は雑草取りや落葉掃除の必要がない、手間のかからないお庭をご希望でした。そのため、敷地全体の土面をしっかりと雑草対策する必要があり、コスト面を考慮したうえで、全面に防草シートと砂利を敷くプランをご提案いたしました。 まずは玄関前です。既存の天然石は処分費を抑えるため、捨てずに据え直します。飛び石風に据えると今後歩きにくくなる事があるかもしれないので、玄関ポーチと平行に据え直します。花壇は不要とのご希望でしたので、コーナーに植えられていた植物を1本だけ残し、その他は撤去します。 また、生垣のコニファーもすべて抜根し、スッキリとした外観に整えます。 南側の掃き出し窓前の広いスペースには化粧平板を敷き、テラスのように使える実用的なエリアを作ります。その前方は、ハードウッド・イタウバ材の目隠しフェンスを設置します。ハードウッドは天然木なので、木ならではの温かみがあり、既製品にない自然な質感が魅力です。更にイタウバは耐久性が高く、経年で色味が落ち着きながらも上質な風合いが楽しめる素材です。 加えて、家周り全体と、階段下の道路と擁壁の境界部分にも防草シートと砂利を敷き、年間を通して雑草を抑える事を重視した庭リフォームプランです。
横浜市O様邸 もう草取りに悩まない!手間いらずの庭リフォームで快適に ビフォーアフター

Before

After
玄関前のビフォーアフターです。玄関奥にあった花壇は不要との事でしたので、コーナーに植えられていた植物を1本残し、撤去処分しました。玄関ポーチの前に飛び石風に据えられていた石の平板はO様のご要望で、ポーチに平行に3枚据えてこのような形になりました。防草シートと砂利を敷き、完成です。

Before

After
北面も除草をして、防草シートと砂利で雑草対策をしました。

Before

After
西面はセイタカアワダチソウが伸びていましたが、全て取り除き防草シートと砂利で雑草対策をしました。広く感じますね。

Before

After
南面メインのお庭のビフォーアフターです。生垣のコニファーは抜根処分しました。南側の掃き出し窓前の広いスペースには化粧平板を敷き、テラスのように使える実用的なエリアを作ります。その前方は、ハードウッド・イタウバ材の目隠しフェンスを設置しました。イタウバは天然木なので、木ならではの温かみがあります。コニファーはすべて取り除きましたが、1本だけコーナーの目隠しにヒメシャラを植栽しました。

Before

After
擁壁の縁周りも防草シート砂利で雑草対策完了です。
横浜市 O様邸のご主人が写真撮影に協力してくださいました。

横浜市 O様 担当スタッフのコメント
「年齢とともに庭の草取りが段々と負担になってきた」というお声は50代・60代・70代のお客様から特に多く寄せられるお庭のお悩みでもあります。 その場合の得策はやはり、お庭の土の部分を極力少なくする事です。横浜市O様邸は玄関前以外は土のままの状態だったので、除草作業はとても大変だったと思います。 今回、全面雑草対策をさせていただきましたし、目隠しに植えられていたコニファーも無くなりましたので、除草作業や落葉掃除をする必要はなく、今まで費やしていた時間も趣味や他の事に使っていただけるかと思います。


グリーン・パトロールの雑草対策工事は、経験と技術のある造園職人が行い、下地の整地から使用する防草シートの品質まで徹底的にこだわっています。
防草技術に自信があるので、施工後万が一防草シートの下や隙間から雑草が生えてくる事があれば無料で対応致します。※
ご相談・お見積もりは無料ですし、当社はしつこい営業も致しません。安心してお気軽にご連絡ください。

































